ザ・パークハウス大阪梅田タワー 29階
超高層免震レジデンス
大阪梅田エリア徒歩圏内で8駅10路線利用可能
ローンシミュレーションこの物件を購入した場合の、月々の支払い価格の一例です。借り入れを保証するものではございません。
- 返済期間
-
- 金利
-
- ボーナス時の増額(1回分)
-
- 借入金額:
-
- 頭金:
-

- 毎月の返済額:
(※元利均等方式 金利5.00%まで ※返済年数5~50年まで入力できます)
(※ボーナスは年2回で計算しています。1000万円まで入力できます)
(※物件購入時、その他諸費用が発生する場合がございます)
担当者のコメント MYplace株式会社

- 衣服だけでなくアクセサリーやカバンなどの小物も置くことができ、一度に身支度を整えることができるウォークインクローゼットがついています。自分好みの環境が作れる、ゆとりある生活が魅力の新築マンション。物件から徒歩2分のところに駅があるので、移動時間に余裕を持つことができます。素敵な生活環境のある2億9200万円の一押しの物件です。不動産の購入をご検討されているなら、大阪市北区ではいかがでしょうか。新生活を快適にスタートできるよう、当社スタッフがしっかりとサポートいたします。
ポイント・特徴
物件概要
【中古マンション】 物件番号:99431509 情報更新日:2026年03月12日 次回更新予定日:2026年03月26日| 所在地 | 大阪府大阪市北区中津1丁目2-4 | ||
|---|---|---|---|
| 交通 | |||
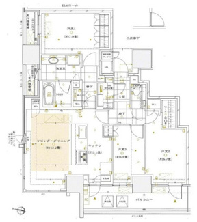
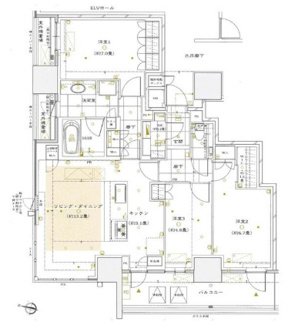
| 間取り/詳細 | 3LDK | ||
| 専有面積/バルコニー面積 | 84.90㎡/11.39㎡ | ルーフバルコニー面積/テラス面積/専用庭面積 | -/-/- |
| 価格 | 2億9,200万円 | ||
| 管理費 | 29,210円 | ||
| 修繕積立金 | 11,890円 | 修繕積立基金 | - |
| 権利金 | - | 駐車場/月額料金 | -/- |
| 土地の敷金/保証金 | -/- | 借地料/借地期間 | -/- |
| 土地権利 | 所有権 | 国土法届出要否 | 不要 |
| 用途地域 | 商業 | 地勢 | - |
| 種別/構造 | 中古マンション/鉄筋コンクリート | 向き | 北西 |
| 築年月(築年数) | 2025年 9月 (築1年未満) | ||
| 所在階/階建 | 29階/36階建 | 棟総戸数/販売戸数 | 173戸/- |
| 管理組合有無 | 有 | 管理形態 | 管理会社に全部委託 |
| 管理員の勤務形態 | 常駐 | 管理会社 | 三菱地所コミュニティ株式会社 |
| 取引態様 | 仲介 | 現況 | 空家 |
| 引渡し | 相談 | 建築確認番号 | - |
| 物件番号 | 99431509 | 取引条件の有効期限 | 2026年03月26日 |
| 設備条件 |
|
||
| 備考 | ◆MYplace(マイプレイス)では堺市西区の不動産(戸建て・マンション・土地)を中心に、戸建てやマンションなど、様々な条件の不動産情報を豊富に取り揃えております。不動産の売却・買取にも対応可能です。長年の実績・知識でお客様をサポートいたしますので、不動産に関するお困りごとはお気軽にご相談ください◆ | ||
| 条件(その他) | インターネット使用料月:2,101円 | ||
| 取扱会社 |
|
||
※地図上に表示される物件の位置は付近住所に所在することを表すものであり、実際の物件所在地とは異なる場合がございます。















